|

Pförtnercontainer, Kassenhäuschen
Pförtnercontainer, Kassencontainer / 1
Containeraußenmaße: Sondergröße(LxBxH): 2,200 x 2,200 x
2,765m (Rauminnenhöhe 2,500m). Größenanpassungen sind möglich.
Außenfarbe: RAL 2009 (optional, sonst Standard RAL 9002).
Isolationspaket: 100 PLUS
Wände: 100mm (U = 0,39 W/m2K) (FTV-Paneele, F90);
Decke: 100mm (U = 0,33 W/m2K);
Boden: 100mm (U = 0,35 W/m2K).
Elektro-Installation:
Verteilerkasten;
1 St. Lichtschalter Standard UP (“unter Putz”);
2 St. Leuchtbalken je 1x58W;
8 St. Steckdosen Standard UP.
Ausstattung:
1 St. Standard PVC-Fenster 885 x 1200mm (1370mm), weiß, mit
Außenrollladen;
3 St. Doppel-PVC-Fenster 1701 x 1200mm (1370mm), weiß, mit
Außenrollladen;
1 St. Alu-Außentür 810 x 2000mm in RAL 9002 mit Verglasung.
Attika (siehe Grundriss);
Die Anordnung der Fenster und Türen kann geändert werden.
Grundriss:
Pförtnercontainer, Kassencontainer 2,200x2,200m, Grundriss
|
|

 |
Pförtnerhaus
mit Attika / 2
Pförtnerhaus mit Sanitärer Einrichtung und
Sanitätsraum. Das Pförtnerhaus besteht aus zwei
Containermodulen.
|
|
 |
Pförtnerhaus/ Kassenhaus ohne Attika / 3
Einfaches Pförtner- und Kassenhaus für 2
Kassenplätze.
Containermaße (LxBxH): 2,989x2,435x2,765m,
RIH 2,500m
Ausstattung:
- 2 St. Fenster Dreh/Kipp;
- 2 St. Fenster mit Ausgabeelement;
- 1 St. Tür;
- Grundelektrik (Verteilerkasten, Beleuchtung, Steckdosen).
|
|
 |
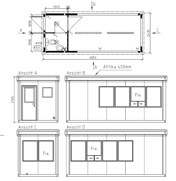
Pförtnercontainer mit WC / 4
Containermaße: 6055mm x 2435mm x 2765mm
(Rauminnenhöhe 2500mm). Wände innen: Blech, verzinkt und
lackiert in RAL 9002. Container-Wandisolation: 60mm (bzw. 100mm)
Mineralwolle.Ausstattung:
- WC-Raum
- 3-seitige Verglasung mit Ausgabe-Fenstern
- Eingangstür mit Verglasung
- Vordach
- Attika
(blau)
- Grundelektrik, Heizung
- Außenwandlackierung: RAL 9006
|
|
 |
| |

 |
Pförtnercontainer / Kassencontainer
mit Vordach / 5
Pförtnercontainer 10' mit Vordach und Attika. Rauminnenhöhe:
2500mm. Außenmaßen (LxBxH): 2989mm x 2435mm x 2765mm.
Ausstattung:
- 2 PVC Fenster mit Ausgabeelement;
- 1 PVC Fenster Standard;
- 1 St. Alu-Außentür;
- Grundelektrik;
- E-Heizung;
- Wandisolation: 100mm Mineralwolle;
- Wände Innen und außen Blech;
- Bodenbelag PVC;
- 1 St. 2KW E-Heizung;
- Attika;
- Rahmenlackierung;
- zwei Seiten überdacht, umlaufende Attika;
- Sonst wie in der Baubeschreibung ST beschrieben.
|
|

 |
Kassenhaus
/
Pförtnercontainer / 6
Isoliertes kleines Pförtnerhaus mit umlaufender Attika.
Containermaße (LxBxH): 2,989x2,435x2,765m,
RIH 2,500m
Ausstattung:
- 2 St. Fenster Dreh/Kipp;
- 1 St. Tür;
- Attika (blau)
- Grundelektrik (Verteilerkasten, Beleuchtung, Steckdosen).
|
|
 |
Kassencontainer mit Vordach
ohne Attika / 7
- Standardcontainer 20': LxBxH 6,055x2,435x2765m
- 4 Fenster mit
Ausgabeelement
- Vordach
- Ohne Attika
|
|
 |
Pförtnercontainer / Kassenhäuschen / 8
Der Container wird fertig montiert geliefert und ist leicht
zu versetzen.
Abmessungen (LxBxH): außen: 1400x1250x2425mm; innen
1300x1050x2300mm.
- Dach und Wände aus verzinkten Trapezblechen.
- Abwaschbare Innenverkleidung.
- Strapazierfähiger Bodenbelag.
- 1 St. Aluminium-Schiebefenster (733x805mm) mit
Schlagladen.
- Doppelwandige Tür mit Sicherheitsschloss.
- Kippfenster über der Tür serienmäßig.
- Schreibablage 350x1050mm.
- Stahlrohrstuhl.
- Fertig montiert.
- Außenwandlackierung, Elektro-Installation, Heizung ist OPTIONAL gegen Aufpreis
möglich.
|
|
Abbildung mit Außenlackierung |
Pförtnercontainer 20' x 10' / 9
Rauminnenhöhe: 2,500m. Außenmaßen (LxBxH): 6,055x2,989mx2,765m.
Ausstattung:
- Wandisolation: 100mm Mineralwolle;
- 1St. PVC Fenster mit Ausgabeelement;
- 1St PVC Fenster Standard;
- 4St PVC Fenster mi Fix-Verglasung;
- 1 St. Alu-Außentür;
- Grundelektrik;
- E-Heizung;
- Kabelkanal mit eingebauten Steckdosen;
- WC-Raum: Waschbecken + WC.
|
|

 |
Pförtnercontaineranlage mit WC-Raum und sekundärer Außenfassade
10
bestehend aus 2 St. Containermodule. Gesamtmaße (LxBxH):
6,055 x 3,300 x 2,765m (RIH 2,500m). Isolationen
und Elektro-Installation: nach Kundenvorgabe.
Ausstattung:
- 2 St. Doppelfenster 1701 x 1200 (1370 mm) mit
Außenrollladen;
- 1 St. Schiebefenster 1500 x 1200 (1370 mm) mit
Außenrolladen;
- 1 St. Standard PVC-Fenster 885 x 1200mm (1370mm), weiß,
mit Außenrollladen;
- 1 St. PVC-Fenster 600 x 600 mm für Sanitärräume,
ohne Außenrollladen;
- 1 St. Alu-Außentür 1010 x 2000mm in RAL 9002 mit
Verglasung;
- 1 St. Alu-Außentür 810 x 2000mm in RAL 9002;
- WC-Raum (WC, Waschbecken mit Zubehör);Vordach;Umlaufende
Attika;Sekundäre Außenfassade (Wellblech);
- Heizung;
- Splitklimagerät 2,6 kW;
|
|

 |
|
|
|
|
|
|